
| 型号名称 | |||||
| 型号 | SV08ENL | ||||
| 名称 |
自行走剪叉式高空作业平台
|
||||
| 工作斗 | |||||
|
最大载荷
|
6m:360kg 8m:230kg
|
||||
|
平台延伸部载荷
|
120kg
|
||||
|
最大离地高度
|
7.77m
|
||||
|
最底离地高度
|
1.215m
|
||||
|
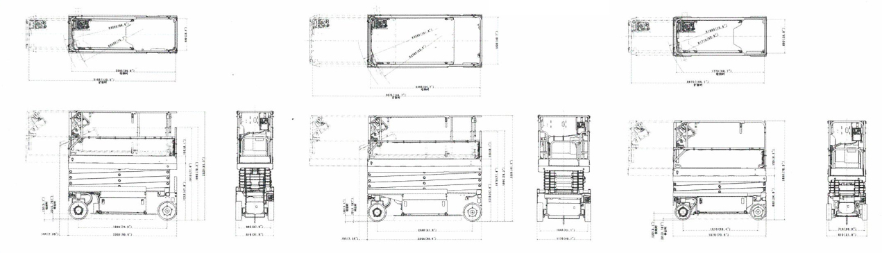
内侧尺寸mm(长✕宽✕高)
|
2205✕680✕1110
|
||||
|
平台延伸长度
|
900mm
|
||||
| 升降装置 | |||||
|
型式
|
一端固定4节✕式
|
||||
|
升降速度(无裁荷时)
|
6.6m/33s(上升)
6.6m/37s(下降) |
||||
| 行走装買 | |||||
|
行走速度(裁荷80kg时)
|
4.5km/h(收回时)
0.8km/h(上升时) |
||||
|
爬坡能力(载荷80kg时)
|
14°(25%坡度)
|
||||
| 电源 | |||||
|
输入电压
|
单相AC220V
|
||||
|
蓄电池电压
|
DC24V
|
||||
|
蓄电池容量(型号X个数)
|
185Ah(T105x4)
|
||||
| 安全装置 | |||||
|
过载限制装置、路面倾斜警报装置、行走限制装置、上升限制装置、行走&升降报警装置、紧急停止装置、深坑保护装置
|
|||||
| 其它装置 | |||||
|
蓄电池容量计、均衡转向装置、接地带
|
|||||
| 产品参数 | |||||
|
整机尺寸mm (全长✕全宽✕全高)
|
2300✕810✕2325
|
||||
|
整机重量
|
2100kg
|
||||
|
最小回转半径
|
2250mm(前轮外侧轮中心)
|
||||

SV-E系列自行走剪叉式高空作业平台为各种工作场所提供便捷高效的服务,平台具有高性能的稳定操作系统。行走采用AC无碳刷马达驱动,有效减少平台移动产生的损耗,综合使用周期提高了150%,充电器采用了温度修正功能,有效延长蓄电池使用寿命。
| 提高工作平台前后方向的稳定性 | 降低工作平台作业时摆动量 | 狭窄机身,收藏高度低于2米,能进入常规货梯,具有良好的通过性 ,适用于室内楼宇及狭小场所作业。![]() |
调整了剪叉联杆的安装位置 ,提高了平台起伸后的稳定性。![]() |
为了给作业者提供更安全、舒适的作业环境 ,从多方面降低工作平台作业时的摆动量。![]() |
|
| 智能化配置,实时掌控整机状况 | 交流传动电动机 | 灵巧机身,工作平台护栏可折叠,良好的操控感,充电作业时间长,适用于多种作业现场的安装维护作业。![]() |
标配上/下部操作箱电量指示灯和异常指示灯,方便作业人员能及时确认整机状态。操作简便,白日常点检、维护更简单。![]() |
采用节能的交流传动电机,保证了较长的工作时间。![]() |
|
| 平台延伸及折叠护栏 | 宽体机身,平台更稳定,作业平台宽大,荷载能力强,且水平延伸可达1270mm,适用于大载重工况作业。![]() |
|
工作平台可水平延伸,NS/NL机型延伸900mm,WL机型延伸可达1270mm。除NS机型外其它机型护栏均可折叠。![]() |
||